Freie Gewerberäume in Harmsdorf bei Ratzeburg
Büro- oder Verkaufsräume zu vermieten
Nur 5 Gehminuten bis zum Ratzeburger Hauptbahnhof mit HVV-Anschluß (50 Min. bis HH-Hauptbahnhof)
22 km – 24 Minuten bis zum Zentrum von Lübeck,
11,5 km – 11 Minuten bis zur A 20 Autobahnauffahrt Lübeck-Süd Richtung Bad Segeberg-Wismar und Verbindung zur A1 nach Hamburg
Der Gewerbehof ist aus einer ehemaligen Kachelofenfabrik von 1954 entstanden. Er hat insgesamt 1.500 m² Nutzfläche und 5.000 m² Grundstück in ruhiger Sackgassenlage.
Eine angenehme Atmosphäre mit unterschiedlichen ansässigen Betrieben: Auto Cleaner, Zimmermann, Maler, Internethandel mit Warenlager, Büro- und Veranstaltungsräume, Mini-Auto-Rennbahn. Gepflasterter Vorhof mit PKW – Stellplätzen.
Geringer Gewerbesteuer-Hebesatz von 290%
Bei Interesse können Sie uns hier erreichen.
Telefon 04541-8038645
Mobil: 0163 33 2 66 33
E-Mail: eugenie@ff-fenster.de
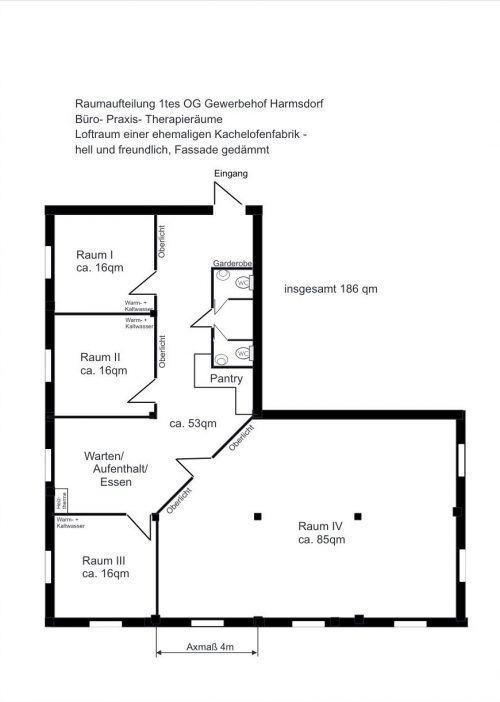
Lichtdurchfluteter Loftraum mit 85qm. FREI AB SOFORT!
Ideal für Joga- oder andere Kurse oder Veranstaltungen. Zusätzlich je nach Bedarf ein bis drei 16 qm grosse Büro oder Therapieräume. Zusätzlich 53qm Flur incl. Ess- oder Warteraum mit Küchenzeile und 2 WC-Räume. Der Raum ist entstanden aus einer ehemaligen Kachelofenfabrik – hell und freundlich, Holzfussboden, mit gedämmter Aussenfassade. Siehe Zeichnung und Fotos.
Mietinteressenten bitte möglichst früh melden.





